Erstvermietung nach umfassender Sanierung und Umnutzung. Beste Lage, zentral nahe Paradeplatz. Gastrobetrieb, Verkaufsladen, Büroflächen und Arztpraxen. Bezug Herbst 2014.
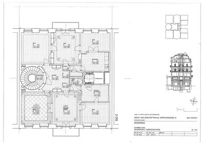
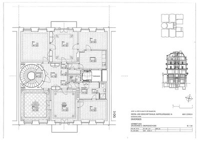
Per 1. Oktober 2014 vermieten wir sanierte Büroräumlichkeiten im 2. und 3. Obergeschoss. Pro Etage finden Sie 6 Büroräume vor, welche mit wunderschönem Parkett ausgestattet sind und mit Stukaturen und grossen Fenstern glänzen.
Nebst dem grossen Empfangsbereich verfügt das Büro über eine separate Toilette und eine Dusche. Es sind Anschlüsse für den Einbau einer Küche vorhanden. Der behindertengerechte Lift führt direkt in die Mieträumlichkeiten. Zwei Büroräumlichkeiten haben einen direkten Zugang zu einem Balkon mit Aussicht auf den repräsentativen Zentralhof respektive die Kappelergasse.


Wintimmo
Treuhand und Verwaltungs AG
Bürglistrasse 29
8401 Winterthur
Telefon +41 52 557 57 00
E-Mail info(at)wintimmo.ch
© 2020 by Wintimmo Treuhand und Verwaltungs AG - Alle Rechte vorbehalten | Datenschutz | Impressum
Design by easy graphics ag